Barn Plans For Events. Pole barns feature poles that stick several feet into the ground. Barn Plans - Free Download CAD Drawings For Sheds and Barns.
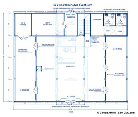
This barn design also features a split loft for a great view of events going on below.
Maybe you've been planning events for a while but want to ensure you're using the best possible framework.
Pole barns feature poles that stick several feet into the ground. Large Private Group Events:Original plans for the restored Barn complex included a meeting and conferencing space, unfortunately this was removed during the budgeting process. A wide variety of barn building plans options are available to you, such as standard, use, and material.








